Studham Lane, Dagnall, Berkhamsted – Sold
Regent Estates are delighted to market Primrose Farm. A rare…
Prices from £800,000
Hudnall Common, Little Gaddesden, Berkhamsted, Hertfordshire, HP4 1QJ
To Buy
£1,950,000
Property ID :
None
Fairfields is a delightful four-bedroom detached country house, beautifully positioned in the peaceful hamlet of Hudnall Common, on the outskirts of Little Gaddesden. Enjoying an idyllic rural setting surrounded by open countryside, this charming home offers the perfect blend of tranquillity and convenience, just six miles from Berkhamsted town centre.
Set within a generous and private plot, Fairfields boasts spacious family accommodation with wonderful views across the surrounding landscape. The well-screened gardens are a particular highlight, providing both privacy and a picturesque backdrop for outdoor living.
From the property there is direct access to walks and bridleways through the stunning Ashridge Estate, ideal for nature lovers and those seeking a peaceful country lifestyle.
Fairfields offers a rare opportunity to acquire a beautiful home in one of Hertfordshire’s most sought-after rural locations, combining country charm with easy access to nearby towns, schools, and transport links.
Oil fired central heating.
EPC Rating D
Council Tax Band G
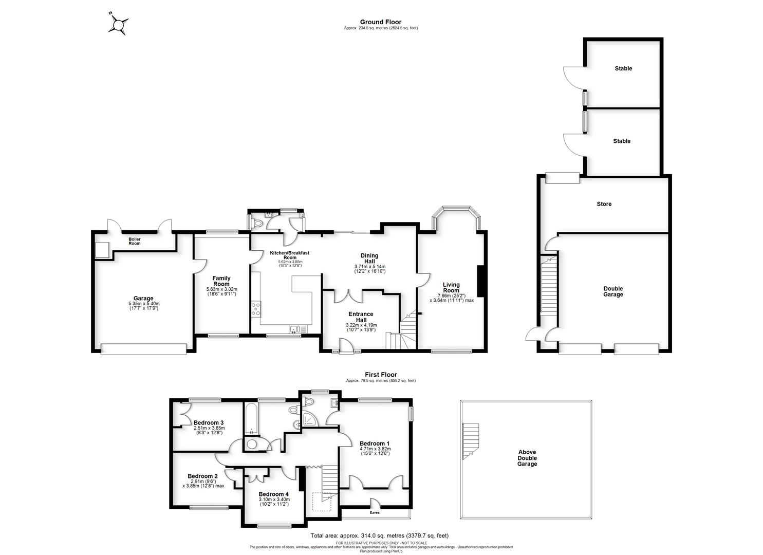
ENTRANCE HALLWAY
Light and spacious with hardwood flooring throughout and stairs to the first floor
DINING HALL
Double glazed doors to a dining hall with sliding doors to the rear garden, open plan to the kitchen/ breakfast room
DRAWING ROOM
A dual aspect sitting room with open fireplace
KITCHEN/BREAKFAST ROOM
A large open plan kitchen/breakfast room with fitted kitchen cupboards and wall units and benefitting from a breakfast bar
FAMILY ROOM
Adjacent TV room/office with fitted bookshelves
CLOAKROOM/BOOT ROOM
Accessed directly from the kitchen and providing access to the rear garden from a back door.
MASTER BEDROOM AND ENSUITE SHOWER ROOM
With eaves wardrobes
GUEST BEDROOM
Overlooking the rear gardens and with fitted wardrove
FRONT DOUBLE BEDROOM
REAR DOUBLE BEDROOM
FAMILY BATHROOM
ATTACHED DOUBLE GARAGE
With utility area and steps to eaves storage
DETACHED DOUBLE GARAGE
TWO CONVERTED STABLES/STORAGE ROOMS
Tenure: Freehold
Council Tax Band: G
Regent Estates are delighted to market Primrose Farm. A rare…
Prices from £800,000
A well presented ground floor apartment in an attractive setting,…
£425,000
Owning a home is a keystone of wealth… both financial affluence and emotional security.
Suze Orman