Westwing, Home Farm, Northchurch
Regent Estates are delighted to present this beautiful two-bedroom mews-style…
£425,000
Kings Road, Berkhamsted, HP4 3BJ
To Buy
£850,000
Property ID :
None
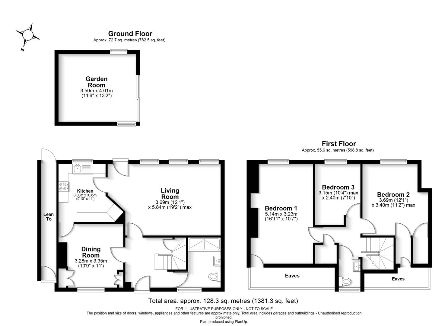
A beautifully presented late-1920s three-bedroom detached home, ideally situated on the desirable Kings Road in the heart of Berkhamsted. This family residence combines character features with modern finishes, offering versatile accommodation perfectly suited to contemporary family living.
The ground floor opens via a welcoming hallway leading to the principal reception spaces. To the front of the property is a stylish dining room, which flows through to the well-appointed kitchen, with convenient access to both the front and rear of the home. To the rear, the spacious living room is filled with natural light and enjoys wonderful views across the garden. A tastefully finished family shower room completes the ground floor accommodation.
Upstairs, there are three generous double bedrooms, all well-proportioned and two enjoying elevated views over the south-facing garden. An additional upstairs cloakroom adds further practicality.
Externally, the rear garden has been thoughtfully landscaped to create an ideal setting for both relaxation and entertaining, featuring a large patio and raised lawn. A substantial garden room with power and heating provides excellent additional space for use as a home office, studio, gym or hobbies room, perfectly positioned within the sunny south-facing garden.
Further benefits include driveway parking accessed via Ashlyns Road. and sold with No Upper chain.
Kings Road is superbly located within walking distance of Berkhamsted High Street, offering an excellent range of boutique shops, cafés, restaurants and everyday amenities, as well as Berkhamsted railway station with direct services to London Euston. The area is also renowned for its excellent schooling, including Berkhamsted School, Tring Park School for the Performing Arts and Ashlyns School.
Tenure: Freehold
Council Tax Band: E
Regent Estates are delighted to present this beautiful two-bedroom mews-style…
£425,000
An opportunity to purchase a 2 double bedroom semi detached…
£370,000
Owning a home is a keystone of wealth… both financial affluence and emotional security.
Suze Orman