Bridens Camp, Hemel Hempstead
An attractive three-bedroom semi-detached cottage forming part of the prestigious…
£500,000
24 Kings Road, Berkhamsted, HP4 3BD
To Buy
£1,150,000
Property ID :
None
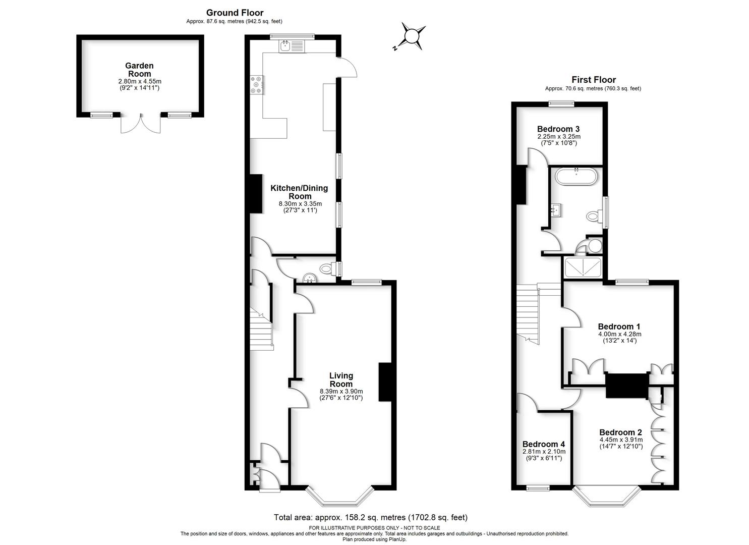
Situated on the prestigious Kings Road, in the very heart of the town centre and just 150 yards from the High Street, this elegant four-bedroom period home offers generous living accommodation and a wealth of beautifully preserved original features.
There is current planning permission in place, reference 23/01691/FHA, for a side return extension to the kitchen/dining room and also an extension to the rear bedroom over the kitchen.
A wide and welcoming entrance hallway immediately sets the tone, leading through to an impressive and well-proportioned reception room. Bathed in natural light from a large front-facing bay window, the room showcases an attractive bio-ethanol fire place, while the rear enjoys delightful views over the garden, creating a warm and characterful living space.
To the rear of the property lies a superb open-plan kitchen and dining room, extending to over 27 feet in length. This highly versatile space is ideal for modern family life, entertaining, and everyday relaxation.
The sense of space continues on the first floor, where a long landing provides access to four well-proportioned bedrooms, offering excellent accommodation for a growing family. The luxurious family bathroom is a particular highlight, featuring a roll-top bath and a large walk-in shower.
Outside, the enclosed rear garden extends to over 60 feet and enjoys a high degree of privacy. Predominantly laid to lawn with a well-sized terrace area, it also benefits from a substantial home office complete with power and heating.
Formally called The Old Rose House, this stylish home perfectly combines elegant period living with exceptional convenience within a 5 minute walk to the train station.
The town is highly sought-after by commuters, benefiting from excellent transport links. The mainline station offers regular direct services to London Euston in just over 30 minutes. Road connections are equally impressive, with the M25 (J20), M1 (J8 and J9), and the A41 dual carriageway.
Tenure: Freehold
Council Tax Band: F
An attractive three-bedroom semi-detached cottage forming part of the prestigious…
£500,000
SHARE OF FREEHOLD WITH NO UPPER CHAIN. A Spacious…
£359,950
Owning a home is a keystone of wealth… both financial affluence and emotional security.
Suze Orman