Granville Road, Northchurch, Berkhamsted – SSTC
A spacious 4/5 bedroom semi detached family home with loft…
Offers in excess of £650,000
Darrs Lane, Northchurch, Berkhamsted, HP4 3TT
To Buy
£900,000
 
        Property ID :
None
Planning permission for a two storey extension has been granted for this character property built by the renowned builder Charles Harrowell for the manager of his brickworks. This impressive detached residence which has been in the same family for over 50 years is located on the outer edges of Berkhamsted in a quiet, semi-rural area. Little Oaks has a generous flat garden to the rear, stunning views across the front. No upper chain.
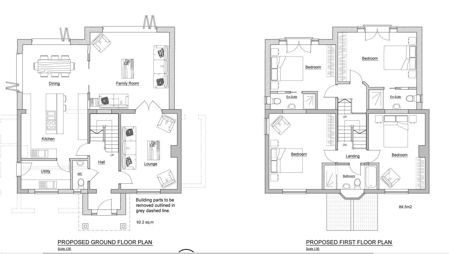
24/02565/FHA – Planning reference number to view via Dacorum. 2-storey rear extension, new front porch and internal alterations. Resulting total square meters of 181.7sq.m.
Little Oaks is approached via the entrance porch and solid front door to the large entrance hall with access to the lounge. Passageway gives access to the dining room and the well-appointed kitchen. Doors lead out to the boot room/utility room and Cloakroom.
Upstairs there are two double bedrooms, a family bathroom and a large loft space (ideal for velux windows and office space).
The house is set back from the road offering a generous driveway providing ample parking and room to build a garage should it be desired. The secluded rear garden is laid to lawn with patio and outbuildings
Little Oaks is situated close to the southern end of Darrs Lane and the junction with Shootersway, which gives easy access to the fine countryside of the Chilterns Area of Outstanding Natural Beauty and the hilltop villages. The renowned health resort of Champneys ia about 2 miles and a five-minute drive away.
It is well placed for access to Berkhamsted town centre and station as well as access to the A41 and thence to M1 & M25. Popular schools in the area include Berkhamsted Collegiate, Westbrook Hay, Beechwood Park and Tring Park School for the Performing Arts.
Tenure: Freehold
Council Tax Band: E
A spacious 4/5 bedroom semi detached family home with loft…
Offers in excess of £650,000
Dione is a generously proportioned detached bungalow, centrally positioned within…
£749,950
Owning a home is a keystone of wealth… both financial affluence and emotional security.
Suze Orman